Großzügiges Haus nahe dem Zentrum von Bruck an der Mur

Objektinformationen

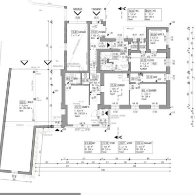
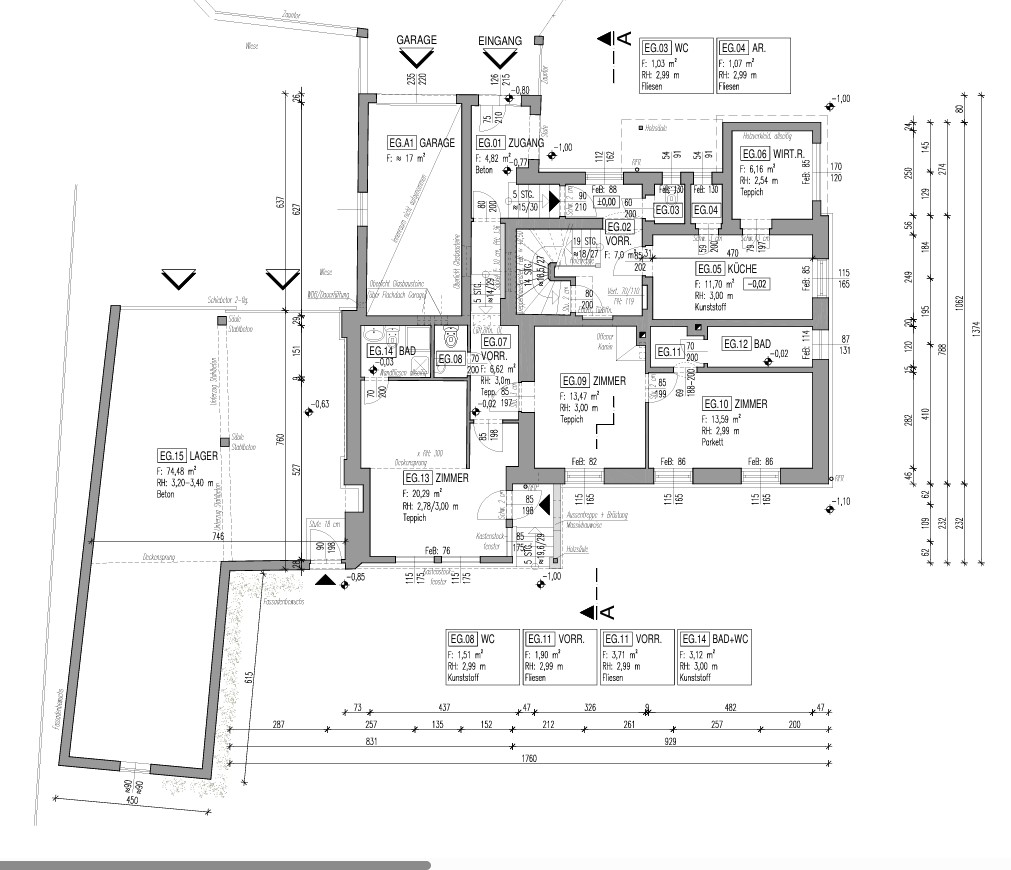
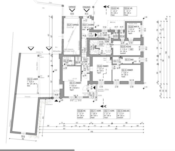
Objekttyp: Haus Immobilienart: Kaufobjekt Lage: Sonstige Postleitzahl: 8600 Ort: Bruck an der Mur Geschoss: EG Bezug: nach Vereinbarung Referenznummer: OSG6

Beschreibung

Dachboden ausbaubar
Fächenwidmung WA0.2-0.6
Energieausweis ist in Arbeit
Bitte kontaktieren Sie uns für weitere Details bzw. Fragen per E-Mail oder Telefon

Ausstattung & Kosten

Keller: Teilunterkellert Terrasse: Ja Garten: Ja Heizungsart: Ölheizung Kaufpreis: € 450.000,00 Vermittlungsprovision: 3 % des Kaufpreises zuzüglich 20 % USt. % zzgl. 20% Ust. des Kaufpreises