Sonnige und gemütliche Maisonette in Andritz mit Terrasse

Objektinformationen

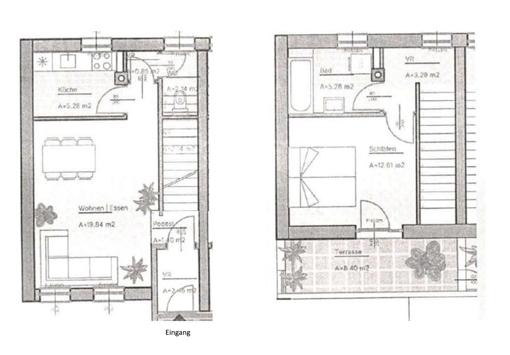
Objekttyp: Wohnung Immobilienart: Mietobjekt Lage: Graz Postleitzahl: 8045 Ort: Graz Größe: 53,16 m² Zimmer: 2 Geschoss: Obergeschoß Stock: 1 Bezug: ab 01.05.2026 Referenznummer: SVS6-8

Beschreibung

Die gemütliche und sonnige Maisonette befindet sich in einer sehr beliebten Wohngegend unweit des Zentrums von Andritz.

Raumaufteilung:
Eingangsebene: Vorraum, großes Wohnzimmer, Küche, WC, Treppe in das Obergeschoß,
Obergeschoss: Zimmer mit Zugang zur Terrasse, Badezimmer mit Badewanne,

Die Heizung funktioniert mittels Fernwärme.

Durch die Nähe zum Hauptplatz Andritz - diesen erreichen Sie in nur wenigen Minuten - steht Ihnen eine perfekte Infrastruktur (Nahversorger, medizinische Versorgung, Ausbildung, Kindergärten, Rad- und Spazierwege, Anbindung an die öffentlichen Verkehrsmittel durch die Endstation Andritz mit Bussen und Straßenbahnen, und damit auch angenehme Erreichbarkeit in das Stadtzentrum mit allen kulturellen Veranstaltungen, etc. ...) zur Verfügung

Ausstattung & Kosten

Terrasse: Ja Heizungsart: Fernwärme Energieausweis HW: 57 Energieausweis FGEE Gesamtenergieeffizienz-Faktor: 0,95 Gesamtmiete: € 794,63 inkl. BK ohne H Kaution: € 2.400,00