RESERVIERT UNIVIERTEL: sonnige 3er-WG-taugliche DG-Wohnung mit Gartenmitbenützung

Objektinformationen

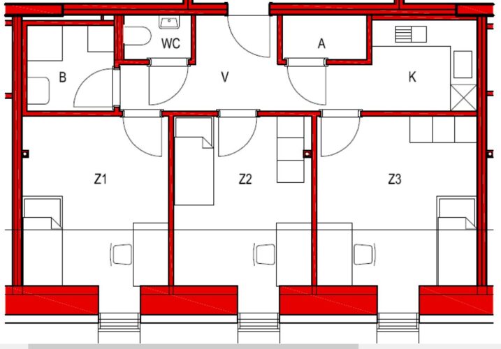
Objekttyp: Wohnung Immobilienart: Mietobjekt Lage: Graz Postleitzahl: 8010 Ort: Graz Größe: 63,00 m² Zimmer: 3.5 Geschoss: Dachgeschoß Bezug: ab sofort Referenznummer: Hei9T13DG

Beschreibung

Diese schöne, helle 3-Zimmerwohnung  befindet sich nur wenige Gehminuten von der Karl-Franzens-Universität und dem Stadtpark entfernt im DG (mit Lift) und eignet sich aufgrund der 3 extra begehbaren Zimmer hervorragend auch als WG.

Raumaufteilung:
Vorraum, Badezimmer mit Dusche, Waschbecken und Waschmaschinenanschluss, WC extra, Küche , 3 extra begehbare Zimmer.

Die schöne Küche ist mit einem E-Herd mit Backrohr, einem Kühlschrank, einem Dunstabzug, sowie einem Geschirrspüler ausgestattet.

Ein kleiner Garten steht der Hausgemeinschaft zur gemeinsamen Nutzung zur Verfügung.

Weiters: TV- und ein Telefonanschluss, Fahrrad – Abstellbereich im Innenhof.

Für die Heizkosten werden derzeit ca. 46,00 mtl. vorgeschrieben.

Ausstattung & Kosten

Lift: Ja Keller: Ja Garten: Ja Heizungsart: Fernwärme Energieausweis HW: 57,7 Energieausweis FGEE Gesamtenergieeffizienz-Faktor: 1,25 Gesamtmiete: € 998,00 inkl. BK ohne H Kaution: € 3.500,00